FLORIDA

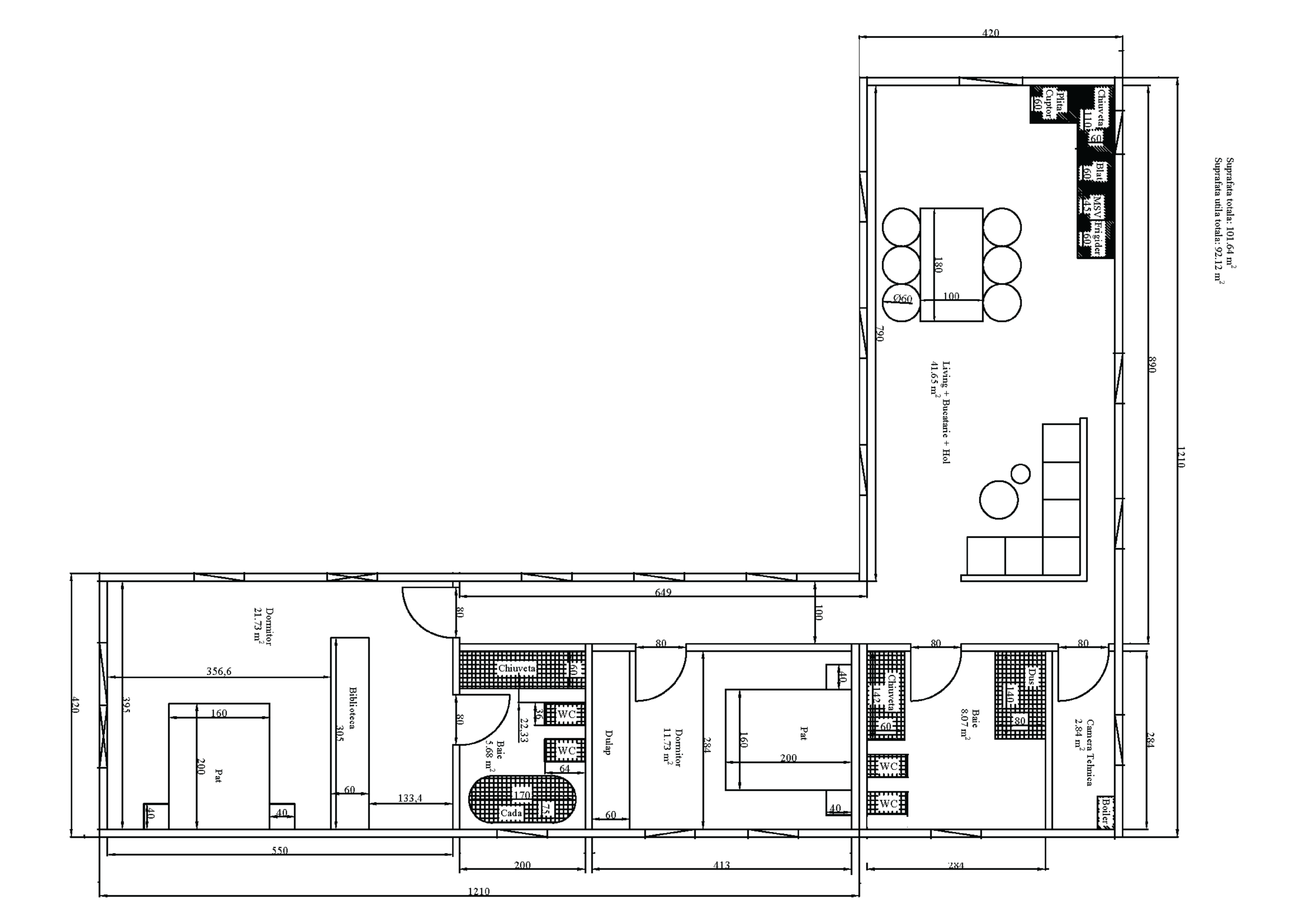
Suprafață totală: 101.6 m²
Suprafață utilă: 88.7 m²
Living: 33.7 m²
Dormitor 1: 11.8 m²
Dormitor 2: 8.9 m²
Dormitor 3: -
Baie: 1x 7.8 m² + 1 x 8.2 m²
Cameră tehnică: 2.1 m²

  • Șasiu metalic cu roți
  • Bară de remorcare pentru transport
  • Structura: oțel, lemn, OSB
  • Acoperiș: tablă ondulată, jgheab tablă
  • Finisaje exterioare: lambriu lemn 22mm
  • Finisaje interioare: lambriu lemn 12mm
  • Finisaje baie: Panel PVC
  • Podea baie: VINIL
  • Pardoseală: Parchet 8mm
  • Izolații: folie anticondens 110g/mp
  • Ventilare naturală pentru circulația aerului în pereți
  • Izolație termică: 15cm vată minerală sub podea și la acoperiș, 10 cm vată minerală în perete
  • Ferestre termopan cu 4 camere și tâmplărie PVC 60mm
  • Uși de terasă termopan
  • Glafuri metalice exterioare
  • Tocuri de uși reglabile
  • Uși interioare
  • Instalații: apă, canalizare, curent electric, ventilație, TV și Internet.
  • Echipamente electrice: cutie de siguranțe, întrerupătoare, prize.
  • Iluminare led interior și exterior
  • Ventilație mecanică în baie
  • Vas WC cu rezervor
  • Cabina duș 90x90cm
  • Lavoar baie
  • Preț: 76.000 euro + TVA

  • Toate elementele din STANDARD
  • Dulapuri de bucătărie inferioare din PAL cu blat de lucru
  • Dulapuri de bucătărie superioare din PAL
  • Chiuvetă bucătărie din compozit
  • Combină frigorifică incorporabilă
  • Plită electrică cu 4 arzătoare
  • Hotă de bucătărie
  • Port prosop baie electric
  • Convectoare electrice
  • Dulap cu oglindă în baie
  • Dulap lavoar
  • Boiler electric 50 l
  • Preț: 82.000 euro + TVA

  • Materiale
  • Fațadă: Siding metalic 0.5mm
  • Finisaje interioare: Panel MDF
  • Tâmplărie PVC 70mm cu tripan 6 camere
  • Tâmplărie PVC în 2 culori
  • Ușă terasă culisantă
  • Uși HDF și cadru lemn masiv
  • Parchet 10mm
  • Încălzire
  • Încălzire pe centrală cu gaz
  • Radiatoare aluminiu
  • Convectoare electrice Wi-Fi
  • Bucatarie
  • Combină frigorifică incorporabilă
  • Plită cu inducție/gaz
  • Cuptor incorporabil
  • Cuptor cu microunde incorporabil
  • Chiuvetă din compozit sau inox în bucătărie
  • Gresie pe tot peretele dintre dulapurile de bucatarie superioare și inferioare
  • Mobilă de bucătărie lucioasă/mată din MDF
  • Baie
  • Boiler 80l
  • Mobilier MDF în baie
  • Duș walk-in 80x140cm
  • Preț: 109.000 euro + TVA

  • Plase de insecte
  • Sistem complet fotovoltaic
  • Recuperatoare de căldură
  • Izolație suplimentară
  • Rulouri exterioare din aluminiu antiefracție - manuale sau electrice
  • Scări de intrare
  • Terasa casei
  • Parchet VINIL
  • Panel SPC în baie
  • Nevoi individuale
  • Mobilă
  • Pat supraetajat
  • Dressing dormitor
  • Dulapuri superioare cu iluminare Led
  • Dulap cu uși glisante
  • Raft pentru pantofi cu umerașe
  • Pat matrimonial cu panoplie
  • Preț: Solicitați Ofertă

Planul casei


Informați-vă și despre celelalte modele:



Odată ales modelul de casă mobilă, nu ezita și ia legătura cu noi...